Toruń , ul. Adama Mickiewicza Bydgoskie Przedmieście

Mieszkanie , 33,86 m2

279 000,00 PLN

Dane nieruchomości:

Numer oferty: 816126
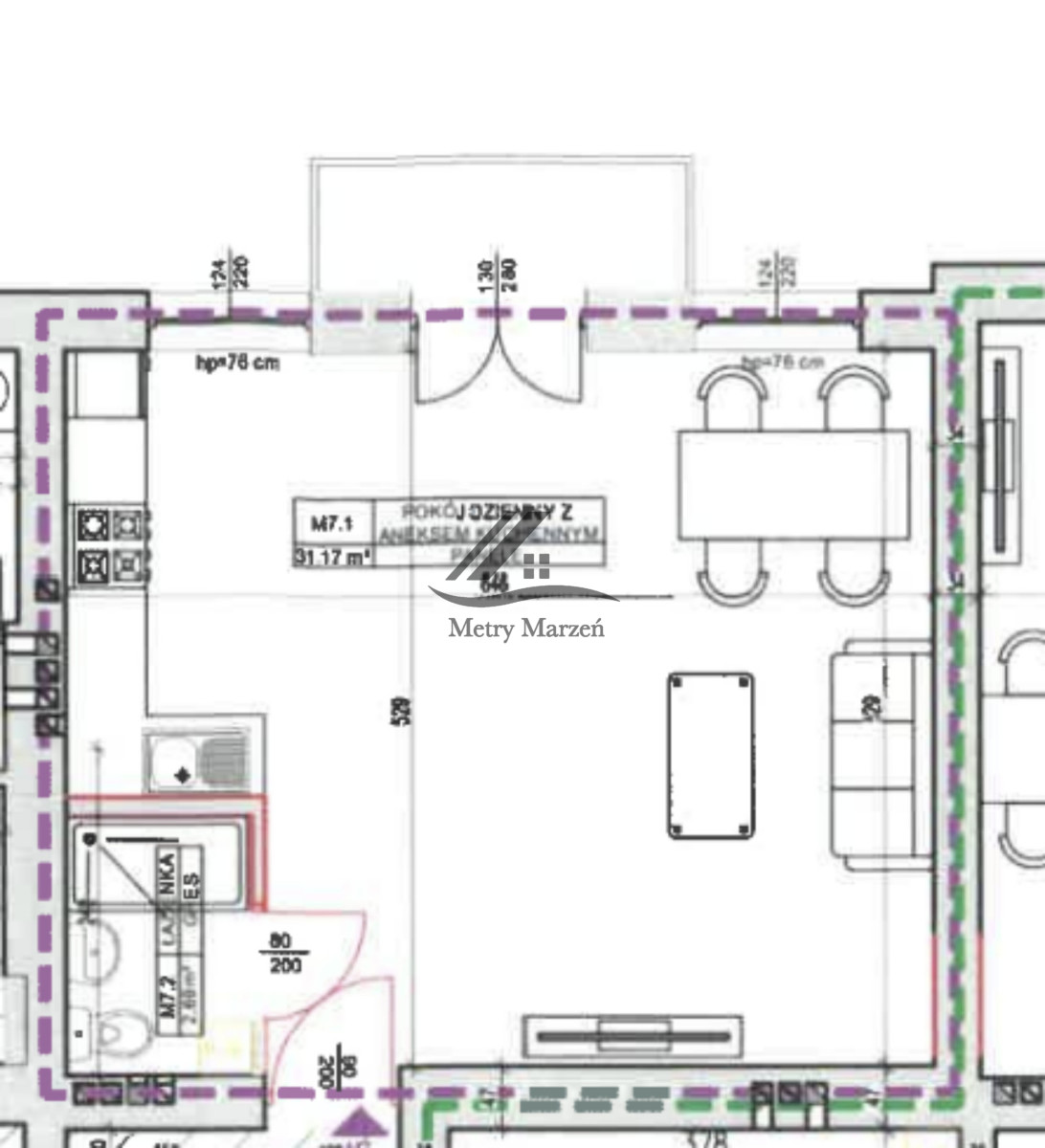
Powierzchnia: 33,86 m2
Liczba pokoi: 2
Piętro 2 /3
Rok budowy: 1900
Balkon: 1
Jasna kuchnia: Tak
Cena za m2: 8 239,81 PLN
Cena: 279 000,00 PLN

Opis nieruchomości:

Mieszkania w kamienicy na sprzedaż - ul. Mickiewicza
Nietuzinkowe  lokale na Bydgoskim przedmieściu!

Na sprzedaż atrakcyjne mieszkanie z balkonem, położone na 2. piętrze w 3-piętrowym budynku przy ul. Mickiewicza. To świetna propozycja zarówno dla osób szukających własnego miejsca do życia, jak i dla inwestorów planujących zakup pod wynajem.

Lokal posiada funkcjonalny układ pomieszczeń, który zapewnia komfort codziennego użytkowania.

Układ mieszkania:

- przestronny salon z aneksem kuchennym i wyjściem na balkon

- oddzielna, ustawna sypialnia

- łazienka

Standard mieszkania:

- świeżo wykonane gładzie na ścianach

- okna PCV

- nowa instalacja elektryczna oraz wodno-kanalizacyjna

- nowy piec gazowy wraz z rozprowadzoną instalacją grzewczą

- nowe drzwi wejściowe, wewnętrzne

- nowe panele 

Nieruchomość znajduje się w doskonałej lokalizacji na Bydgoskim Przedmieściu - w pobliżu sklepów, przystanków komunikacji miejskiej oraz terenów spacerowych. To miejsce łączy wygodę życia w mieście z bliskością zieleni.

Dodatkowo: istnieje możliwość dokupienia miejsca postojowego oraz komórki lokatorskiej za dodatkową opłatą.

UWAGA!!!
W naszej ofercie posiadamy więcej nieruchomości do remontu w tej Kamienicy:

- 33,88 m2 - 279 000 zł,
- 81,32 m2 - 240 000 zł.

Zapraszam do kontaktu i obejrzenia mieszkania na żywo.


Anna Kempa
telefon: 601-793-634
e-mail: ania.metrymarzen@gmail.com

Przeprowadzę Państwa przez cały proces zakupu oraz zagwarantuję bezpieczeństwo transakcji.

USŁUGA POŚREDNICTWA JEST USŁUGĄ PŁATNĄ W SYTUACJI ZAKUPU NIERUCHOMOŚCI.
PREZENTACJE WSZYSTKICH NIERUCHOMOŚCI SĄ BEZPŁATNE.
PRZED PREZENTACJĄ, ZA OKAZANIEM DOKUMENTU TOŻSAMOŚCI, NALEŻY PODPISAĆ UMOWĘ POŚREDNICTWA.

Niniejszy opis ma charakter informacyjny i nie stanowi oferty w rozumieniu Kodeksu Cywilnego.

Lokalizacja:

Skontaktuj się z agentem :
Anna Kempa

Telefon : 601 793 634

ania.metrymarzen@gmail.com